1、根據《建筑防煙排煙系統技術標準》GB 51251第3.1.6條,地下、半地下建筑的封閉樓梯間不與地上樓梯間共用且僅為一層時,可不設置機械加壓送風系統;是否意味如果地上、地下共用或地下層數大于一層時,則應該設置機械加壓送風系統?
答:對于地下、半地下建筑(室)的封閉樓梯間,當其不與地上樓梯間共用且地下僅為一層時,可不設置機械加壓送風系統,但首層應設置有效面積不小于1.2㎡的可開啟外窗或直通室外的疏散門。此為特例情況。
對于其他情況下的地下、半地下建筑(室)的封閉樓梯間、防煙樓梯間,如采用自然通風,應滿足《建筑防煙排煙系統技術標準》GB 51251第3.2.1條要求,并且可開啟外窗或開口面積不應小于2㎡。
2、《建筑防煙排煙系統技術標準》GB 51251第4.3.3條第2款“自然排煙窗(口)的開啟形式應有利于火災煙氣的排出”所指的“有利于火災煙氣的排出”的排煙窗(口)的開啟形式是指何種窗,大于200m2的排煙房間可否使用上懸窗?
答:大于200m2的排煙房間,其設置在外墻上的單開式自動排煙窗宜采用下懸外開式,條件受限時,可采用上懸窗。
3、根據《建筑防煙排煙系統技術標準》GB 51251第4.3.4條,廠房、倉庫的自然排煙窗(口)設置在外墻時,應沿建筑物的兩條對邊均勻設置;兩條對邊自然排煙窗(口)需均勻設置是指每個防火分區還是防煙分區?部分工業建筑兩條對邊均設有排煙窗,但因排煙口距離不滿足上述規范第4.3.2條要求,如采用擋煙垂壁劃分不同的防煙分區,靠窗的防煙分區采用自然排煙,內區距離排煙窗較遠的采用機械排煙,對于靠窗的防煙分區只有一側設有自然排煙口,但對于整個防火分區對流仍存在,是否可行?
答:兩條對邊需均勻設置自然排煙窗(口)是指每個防火分區;當防火分區內側墻上設置的外窗可形成對流,且需自然排煙的防煙分區滿足自然排煙條件時可以。
4、《建筑防煙排煙系統技術標準》GB 51251中3.1.3條第2款“當獨立前室、共用前室及合用前室的機械加壓送風口設置在前室的頂部或正對前室入口的墻面時,樓梯間可采用自然通風系統;當機械加壓送風口未設置在前室的頂部或正對前室入口的墻面時,樓梯間應采用機械加壓送風系統”。此處前室機械加壓口設置于前室頂部,是否要求加壓口一定位于前室門頂上方?對于多個門的前室(如住宅三合一前室),當樓梯間自然通風時,前室加壓口有無要求設置在每個門上方?
答:按《建筑防煙排煙系統技術標準》GB 51251規范條文,加壓口設置在頂部即可(樓板下或天花設置風口下送),不需設置于前室門頂正上方。
5、《建筑防煙排煙系統技術標準》GB 51251中3.1.3第2款“當獨立前室、共用前室及合用前室的機械加壓送風口設置在前室的頂部或正對前室入口的墻面時,樓梯間可采用自然通風系統;……”對建筑高度小于或等于50m的公共建筑、工業建筑和建筑高度小于或等于100m的住宅建筑,當剪刀梯對應的前室的機械加壓設置滿足以上要求時,該剪刀梯是否可采用自然通風?
答:對建筑高度小于或等于50m的公共建筑、工業建筑和建筑高度小于或等于100m的住宅建筑,當剪刀梯對應的前室(含獨立前室、共用前室和合用前室)的機械加壓設置滿足以上要求時,該剪刀梯可以采用自然通風。
6、《建筑防煙排煙系統技術標準》GB 51251第3.4.6條中關于門洞風速和疏散門面積,提及“當獨立前室、共用前室或合用前室機械加壓送風而樓梯間采用可開啟外窗的自然通風系統時,通向獨立前室、共用前室或合用前室疏散門的門洞風速不應小于0.6(Al/Ag+1)(m/s);Al為樓梯間疏散門的總面積(㎡);Ag為前室疏散門的總面積(㎡)”。
1.此處Al為各層樓梯間所有疏散門總面積還是計算該層樓梯對應的所有疏散門之和?
2.Ag為各層前室所有疏散門總面積還是計算該層前室對應的所有疏散門之和?
3.如為該層前室對應疏散門面積,則對于多個門的住宅前室,參照3.4.6中Ak住宅前室取值,是否為該層前室尺寸最大的一個疏散門的面積?
4.對于住宅合用前室、共用前室,其門的個數如何選取?
答:1、2問題的Al、Ag均指計算當層的疏散門總面積;
3.對于住宅多個門的前室,Ag為其中面積最大的門的面積。
4.參考國標圖集《防排煙及暖通防火設計審查與安裝》1.5.1“樓梯間及前室計算風量確定”項,對于住宅建筑的疏散樓梯間前室、消防電梯前室和合用前室AK取1,“三合一”前室AK取2。當門大小不一時,取最大的兩個門面積。
7、根據《建筑防煙排煙系統技術標準》GB 51251排煙閥術語,排煙閥為平時呈關閉狀態,火災時可手動和電動啟閉,起排煙作用,其組成部件中不包括溫感器。根據《建筑防煙排煙系統技術標準》GB 51251第4.4.10條,一個排煙系統負擔多個防煙分區的排煙支管上,應設置排煙防火閥,即排煙支管上需要設置排煙閥+排煙防火閥兩個閥門,實現平時常閉、火災時可手動和電動啟閉,以及當煙氣溫度超過280℃時可關斷防止煙氣蔓延。請問排煙支管上是否可以采用全自動排煙防火閥(帶280℃溫感,可手動和電動啟閉,平時設為常閉)代替以上兩個閥門?
答:參照《消防設施通用規范》GB55036,專用排煙系統(非兼用)排煙支管應設置排煙閥+排煙防火閥,所設閥門應可滿足電氣專業對消防聯動的要求。
8、《建筑防煙排煙系統技術標準》GB 51251第3.3.5條第3款與《人民防空工程設計防火規范》GB 50098第6.2.7條不一致,兩本規范要求的進風口和排風口水平距離分別是20m和15m,垂直布置分別是6m和3m,如何執行?
答:應同時滿足相關規范要求。
9、公共建筑、工業建筑中空間凈高大于6m的場所,其每個防煙分區排煙量應根據場所內的熱釋放速率進行計算確定,且不應小于《建筑防煙排煙系統技術標準》GB 51251表4.6.3中的數值;部分建筑首層設置入戶大堂或門廳,面積大于100㎡且高度超過6m,但因面積較小,要開足夠的面積的自然排煙口較為困難,是否能按只有人員通行而沒有人員停留,不設置排煙設施?
答:應先明確入戶大堂或門廳是否為擴大前室,如果為擴大前室,則應設置防煙設施,否則應設置排煙設施。
10、關于《建筑防煙排煙系統技術標準》GB 51251第4.6.3條第3款與第4款:對于走道或回廊周圍的房間,都有自然排煙條件的(即使規范不要求設置排煙設施),是否可以按第4.6.3條第4款的要求,在自然排煙的走道設置有效面積不小于走道、回廊建筑面積2%的自然排煙窗(口)?
答:當走道或回廊周圍的房間均設有自然排煙設施時(即具備自然排煙條件,雖然房間面積小,規范不要求設置排煙設施),可按《建筑防煙排煙系統技術標準》GB 51251第4.6.3條第4款的執行。
11、暖通空調機房、設備房、電梯機房等外墻上的排(進)風口是否需設置防火閥?
答:如進排風口為連通室外空間,外墻風口處可不設置防火閥。
12、設備房氣體滅火后排風能否與地下室排煙共用風井?
答:可以,但是所有共用風井的管道均應設置防止回流措施。
13、根據《建筑防煙排煙系統技術標準》GB 51251第3.1.6條,當封閉樓梯間位于地下二層且直通室外(在地下一層不開門),與室外地坪的高差小于10m,當首層設置有效面積不小于1.2㎡的可開啟外窗或直通室外的疏散門時,是否可不設機械加壓送風系統?
答:單獨直通室外(僅該層設疏散門,僅服務1層,其他層不設門)且與室外地坪的高差小于10m的地下封閉樓梯間,當首層設置有效面積不小于1.2㎡的可開啟外窗或直通室外的疏散門時,可以不設機械加壓送風系統。
14、室內凈高小于10.7m的車間,自然排煙口到室內最不利點的距離是否應滿足室內凈高2.8倍的距離要求?
答:根據應急管理部四川消防研究所2019年2月18日關于咨詢《建筑防煙排煙系統技術標準》的復函,關于防煙分區內任一點與最近的自然排煙窗(口)之間的水平距離,對于建筑內空間凈高大于10m的工業建筑,可按不大于建筑凈高的2.8倍進行設計,對于其他情形上述水平距離均按不大于30m的基本要求進行設計。
15、根據《建筑防煙排煙系統技術標準》GB 51251第4.6.3條第3款,當公共建筑僅需在走道或回廊設置排煙時,其機械排煙量不應小于13000m3/h,或在走道兩端(側)均設置面積不小于2㎡的自然排煙窗(口)且自然排煙窗(口)的距離不應小于走道長度的2/3,問:
1.當房間不需要設置排煙設施,但實際上房間具備自然排煙的條件時,是否可按第4.6.3條第4款執行?如各房間的面積均大于50㎡但不大于100㎡,且有滿足自然排煙要求的外窗。
2.自然排煙窗(口)的距離如何計算,是按照相近邊緣的距離還是中心線距離?兩端(側)各有兩個或兩個以上自然排煙窗(口)如何計算?
答:1.當房間本身不需要設置排煙設施,但實際上房間滿足自然排煙的條件時,走道排煙也可按第4.6.3條第4款執行。2.自然排煙窗(口)之間的距離按邊緣到邊緣距離;當兩端(側)各有兩個或兩個以上自然排煙窗(口)時,應按最近窗(口)邊緣到邊緣之間的距離,且每個排煙窗(口)的有效面積應不小于其服務范圍地面積的2%。
16、住宅樓通道的排煙是否能夠按《建筑防煙排煙系統技術標準》GB 51251第4.6.3條第3款與第4.6.3條第4款執行。
答:可以。
17、敞開樓梯在頂層的樓梯間設置門時,是否應在最高部位設置面積不小于1.0m2的可開啟外窗或開口?
答:敞開樓梯可不用設置。
18、根據《建筑防煙排煙系統技術標準》GB 51251第4.1.3條第4款,當中庭與回廊之間無防火卷簾,是否需要設置擋煙垂壁,擋煙垂壁的高度是否需要按4.6.2計算確定?
答:當中庭與回廊之間無防火卷簾時,需要設置擋煙垂壁,擋煙垂壁的高度按《建筑防煙排煙系統技術標準》GB 51251第4.6.2條計算確定。
19、《建筑防煙排煙系統技術標準》GB 51251第4.1.4條提到的場所,位于內區設置機械排煙的房間無設置對外固定窗的條件,應如何解決?
答:根據標準要求,只需在外墻或屋面設置即可,不針對具體房間。
20、根據《建筑防煙排煙系統技術標準》GB 51251第5.2.2條第4款所要求的“系統中任一排煙閥或排煙口開啟時,排煙風機、補風機自動啟動”,對于地下車庫的排煙系統兼作平時排風,排煙支管上是否需要并如何設置(常閉)排煙閥或遠程排煙口?
答:對于僅負擔一個防煙分區的地下車庫排煙并兼平時排風的系統,其排煙支管上不需設置常閉的排煙閥或遠程排煙口;排煙風機的開啟可按滿足《建筑防煙排煙系統技術標準》GB 51251第5.2.2中第1~3款實現排煙時的啟動。當車庫排煙系統負擔多個防煙分區時,按相應規范標準執行。
21、游泳池的池面區域,是否需要設置排煙系統?
答:池面區域周邊設擋煙垂壁時,游泳池池面區域可不設排煙系統。
22、《建筑防煙排煙系統技術標準》GB 51251第4.6節關于排煙量及熱釋放速率等取值需首先判斷是否有設置噴淋,對于設置消防水炮滅火設施的場所,是否可按有噴淋取值?
答:當設置消防水炮時,可按有噴淋取值。
23、住宅樓地下室前室有多個門時,其加壓風量計算門數量如何取值?
答:按實際門個數,但管井檢修門可以不計算。
24、空調通風風管、消防排煙風管、補風管、加壓送風管等是否允許穿越建筑內樓梯間、(合用)前室、避難走道、避難區等?
答:建筑高度大于250m時,排煙風管不可以穿越樓梯間、(合用)前室,當風管必須穿越時,應設置土建夾層。
建筑高度大于250m時且為非排煙風管,以及建筑高度不大于250m時的各類風管,當風管必須穿越時,應設置土建夾層;或風管設置耐火保護,其耐火極限不應低于相應墻體耐火等級,穿越防火墻應設置防火閥(排煙防火閥)。當加壓風管穿越其所服務的樓梯間或前室服務時,穿越管段耐火保護滿足《建筑防煙排煙系統技術標準》GB 51251第3.3.8條即可。
穿越避難區、避難走道的管道,參照《建筑高度大于250米民用建筑防火設計加強性技術要求(試行)》第二十二條,其耐火極限不應低于1.50h。
25、共用前室與消防電梯合用的前室(三合一前室),是否可根據《建筑設計防火規范》GB 50016第8.5.1條規定,采用敞開的陽臺、凹廊,或設置有不同朝向的可開啟外窗,且開啟面積滿足自然通風的要求,從而與樓梯間一并采用自然通風方式?
答:三合一前室無論是否可自然通風,均需設置機械加壓系統。
26、地上有2層的房間內設置敞開樓梯:
1.下層的樓梯開口沒有設置擋煙垂壁,考慮排煙設施時房間建筑面積是按上、下層疊加計算,還是按上、下層分別計算?
2.下層的樓梯開口沒有設置擋煙垂壁,按規范要求需要設置排煙外窗時,外窗應如何設置?
答:按《建筑防煙排煙系統技術標準》GB 51251第4.2.3條,設置排煙設施的建筑內,敞開樓梯和自動扶梯穿越樓板的開口部應設置擋煙垂壁等設施。開敞樓梯開口部設置擋煙垂壁后,上、下層應分別設置排煙外窗,其面積按上、下層各自獨立防煙分區考慮。敞開樓梯下層面積可計入上層房間防煙分區面積,上層房間防煙分區凈高按上層房間凈高,不按敞開樓梯兩層通高高度。
27、幕墻開啟扇為百葉,如何計算開啟面積?與排煙口計算有何區別?
答:參照《建筑防煙排煙系統技術標準》GB 51251第4.3.5條第4款,當采用百葉窗時,其面積應按窗的有效開口面積計算,即百葉有效面積,為百葉的總凈面積(不含邊框)乘以遮擋系數。
28、根據《建筑防煙排煙系統技術標準》GB 51251第3.3.10條,采用機械加壓送風的場所,不宜設置可開啟外窗。但樓梯間、前室平時需要通風換氣,如何解決?
答:當因平時通風換氣需要等設置可開啟外窗時,應確保火災時可開啟外窗處于關閉狀態或不影響機械加壓效果。
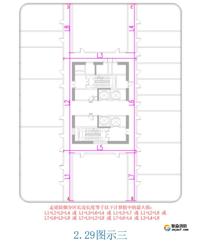
29、根據《建筑防煙排煙系統技術標準》GB 51251第4.2.4條,防煙分區有長邊最大長度的規定,對于異形走道的防煙分區長邊長度如何計算?如環形走道。對于矩形、L形、多邊形等房間以及圓形房間防煙分區長邊如何計算?
答:環形走道算其周長的一半(見2.29圖示一,走道防煙分區長邊長度=(L1+L2+L3+L4)/2),非環形按各段長度累加(見2.29圖示二,走道防煙分區長邊長度=L1+L2)。
走道防煙分區長邊計算原則為煙氣流動可形成的最大長度,對于環形走廊,考慮煙氣流動無特定方向,可同時兩個方向流動,故對于環形走廊,按理想狀態自由擴散,煙氣沿走道兩個相反方向同時流動形成的最大長度為周長的一半。對于同時有環形走道并有分支走道的情形,如“井”字走道,可按此煙氣流動原則確定長邊,見2.29圖示三。



對于矩形、L形、多邊形等房間,按最長的單邊長度計算防煙分區長邊,對于圓形房間,按直徑計算防煙分區長邊長度。
30、對于首層直通室外前室、屋面直通室外前室,其門為開向室外,是否需要加壓,加壓風量如何計算?對于避難層前室,其一側連通樓梯間,另一側連通避難區,該類前室是否需要加壓,加壓風量如何計算?
相關規范條文:根據《建筑防煙排煙系統技術標準》GB 51251第3.4.5條至3.4.8條的條文解釋,計算前室加壓風量時,其開啟門是指走廊或房間通向前室的門。以上情況中,前室門或由前室開向室外,或為前室(避難區)開向避難區(前室),與條文解釋中走廊或房間通向前室的門不同。另外避難區與前室相對于走道之間的壓差為25Pa至30Pa,避難區與前室無壓差。
答:首層直通室外前室、屋面直通室外前室,其門為開向室外且無其他內門(不含樓梯間門)開向前室,可不需要加壓。
避難層前室,其一側連通樓梯間,另一側連通避難區,該類前室需要加壓,加壓風量按保證門洞風速計算。
微信掃碼 關注我們
工作時間:周一至周六(9:00-18:00)4006-598-119
移動電話15262554119
Copyright © 2010-2025 www.yuxintruck.com 智淼消防 版權所有 地址:江蘇省蘇州市常熟市黃河路275號城市之星119室 網站地圖 (XML?/?TXT) 技術支持:消防檢測儀器網
蘇公網安備32058102002156號 ICP備案證書號:蘇ICP備19022074號-17